Wie Sie uns finden

// Adresse

Vogt Architekten BDA
Bettinger-Str. 113
79639 Grenzach-Wyhlen Deutschland

// Telefon

+49 7624 5958

// Fax

+49 7624 6032

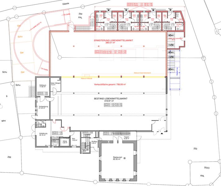
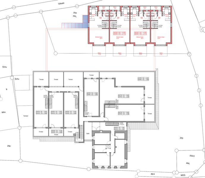
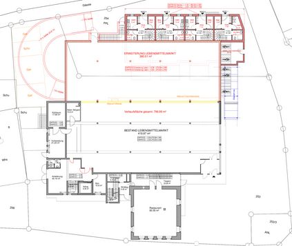
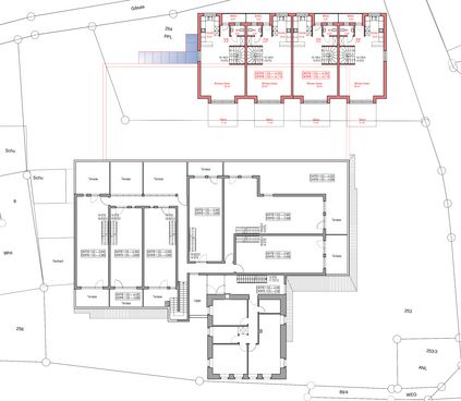
Erweiterung eines Lebensmittelmarktes und Neubau von 4 Maisonettewohnungen in Rheinfelden-Herten

Der Lebensmittelmarkt in Rheinfelden-Herten erfährt eine Erweiterung um rund 380m², was nahezu einer Verdoppelung seiner Verkaufsfläche entspricht. Somit wird der Markt zu einem attraktiven, modernen Einkaufsmarkt im Zentrum von Herten.

 

Zusätzlich werden in den oberen Geschossen 4 Maisonettewohnungen realisiert.

Diese bieten einen modernen, interessanten Grundriss, welcher sich auch für Familien eignet.

Die zentrale Lage ist sehr interessant, dennoch sind die Wohnungen durch ihre rückwärtige Lage ruhig gelegen.