Wie Sie uns finden

// Adresse

Vogt Architekten BDA
Bettinger-Str. 113
79639 Grenzach-Wyhlen Deutschland

// Telefon

+49 7624 5958

// Fax

+49 7624 6032

Neubau eines Feuerwehrgerätehauses in Freiburg-Kappel

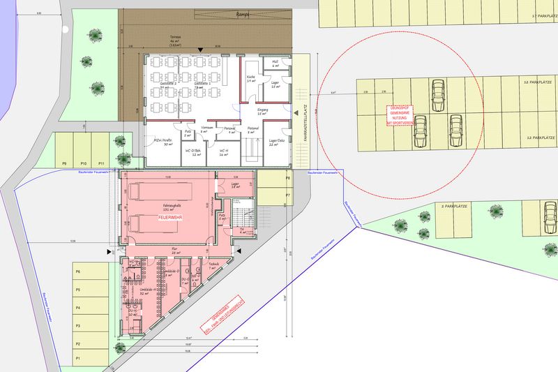
Das neue Gebäude wird zweigeschossig ausgeführt. Es werden zwei Stellplätze für Einsatzfahrzeuge, grosszügige Umkleide- und Sanitärräume, getrennte Räume für die Kommandanten, Jugendfeuerwehr und einen Mehrzweckräume für Schulungen ausgeführt.

 

Balkone und Treppen sind geeignet für Übungen zum Anleitern, Retten von verunfallten Personen und weitere Trainingseinheiten.

 

Als baulich getrennte Einheit wird das Sportheim für SV Kappel ausgeführt. Hier befindet sich im Erdgeschoss eine Gaststätte, welche durch ihre grosszügige Terrrasse den Bezug zum sportlichen Geschehen auf dem Fussballplatz herstellt. Von hier aus lässt sich das Spielgeschehen sehr gut verfolgen.

Ebenso im Erdgeschoss findet sich ein Mehrzweckraum, Lager und diverse Nebenräume.

Im Obergeschoss des Sportheims befinden sich insgesamt fünf Umkleideräume mit dazugehörigen Nebenräumen.

Trotz der baulichen Trennung von Feuerwehrgebäude und Sportheim bildet das Gebäude eine architektonisch reizvolle Einheit.